Väitän, että ovat! Rajaan kuitenkin väitettä hieman. Aikapommeja ovat parkkinormin mukaan rakennetut pysäköintilaitokset. Tässä tekstissä käytän case-esimerkkinä Merihakaa, jossa aikapommi on laukeamassa. Olen huolestunut myös uusimmille asuinalueille rakennetuista ja rakennettavista pysäköintilaitoksista.
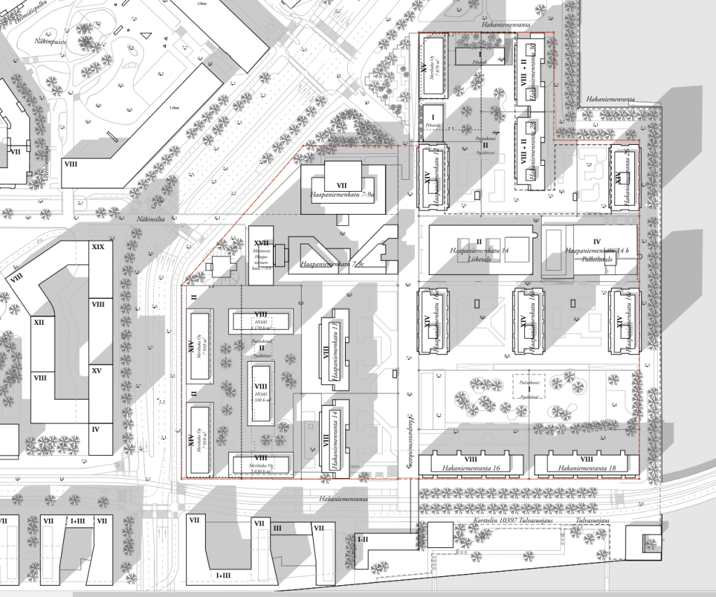
Merihaan ja sen parkkitalojen tausta
Merihaka rakennettiin 70- ja 80-luvuilla, sisältäen kaksi pysäköintilaitosta: Hakaniemenranta 10 ja Haapaniemenkatu 10 kaiken muun pihakannen alaisen pysäköinnin lisäksi. Merihaassa on yhteensä 1246 pysäköintipaikkaa. Nämä jakautuvat seuraavasti:
- 437 paikkaa on Hakaniemenranta kympissä (parkkitalo 1)
- 233 paikkaa on Haapaniemenkatu kympissä (parkkitalo 2)
- 496 paikkaa on pihakannen alla kiinteistöjen omilla mailla.
- 80 paikkaa on pihakannen alla toisen kiinteistön alueella.

Nyt nelisenkymmentä vuotta myöhemmin Merihaka on tulossa peruskorjausikään. Asuintaloissa on jo käynnissä putkiremonttien aalto. Lisäksi useita rakennuksia ollaan kehittämässä alkuperäisestä käyttötarkoituksesta poiketen. Meritorniin ollaan hakemassa käyttötarkoituksen muutosta muuttamalla kerrokset 6–18 asunnoiksi. Tämä kuulostaa ihan fiksulta, kun tornissa on nykyisin useampi kerros tyhjillään. Ostarin omistajat ymmärtääkseni haluisivat korvata pytingin uudisrakennuksella. Palloiluhallikin haluttaisiin kovasti korvata asumisella, mutta tämä on tainnut osoittautua hankalaksi neuvotteluissa kaupungin kanssa – tai jotain sinne päin.
Edellä mainitut peruskorjaukset/tms ovat kalliita paukkuja kiinteistöjen omistajille. Rahoitus kuitenkin järjestyy, tarvittaessa myymällä kiinteistö, kehittämällä sitä tai nostamalla vuokratasoa. Mutta kukas rahottaisi parkkitalojen peruskorjauksen? Nekin ovat kalliin peruskorjauksen tarpeessa.
Kuluneen 40 vuoden aikana pysäköintilaitosten normit (kuormankestävyys, tilojen mitoitus) ovat kehittyneet sen verran, että peruskorjauksen sijaan Parkkitalot pitäisi oikeastaan purkaa ja rakentaa uudestaan. Operaation hinta olisi noin 30 miljoonaa euroa, eli noin 50 000 € per autopaikka.
Parkkitalot omistaa Merihaka Oy, jonka omistaa Merihakalaiset taloyhtiöt. Toisin sanoen parkkitalojen rempan maksaa merihakalaiset, jonkinlaisilla pysäköintimaksujen ja taloyhtiölainan yhdistelmillä. Merihakalaiset ovat kuitenkin kovin vastahakoisia kummallekin ajatukselle.
Rahoitusta ei merkittävissä määrin edes saataisi pysäköintimaksuista, koska riittävän kovat korotukset johtaisivat käyttöasteen laskemiseen. Taloyhtiöiden rahoittamana rempan hinta olisi 300-400 euroa per asuinneliö, eli kymppitonneja per asunto. Tämä olisi aika kova hinta maksettavaksi merihakalaisille – ja erityisesti autottomille.
Valitettavasti parkkitaloja ei voi jättää uusimatta, koska kaupunki vaatii pysäköintipaikkojen määrän pitämistä ennallaan parkkinormin kautta. Tilanne onkin johtanut siihen, että Merihaka Oy:n johdolla on jo jonkin aikaa suunniteltu rempan rahoittamista myymällä rakennusoikeutta parkkitalojen päälle rakentamiseen.
Parkkitalojen käynnistämä kehitys Merihaassa
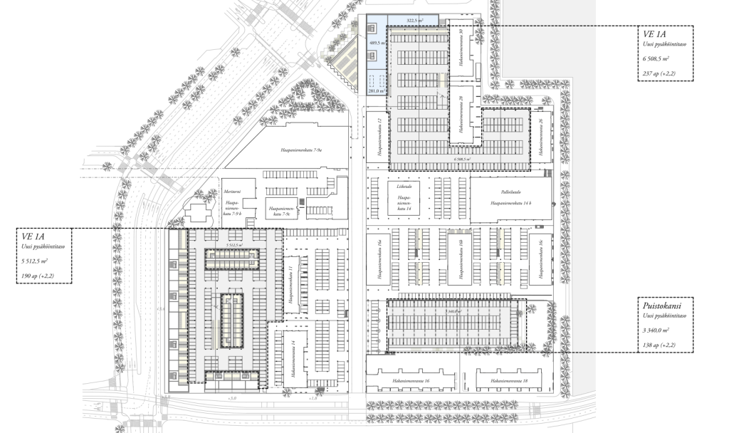
Tilanne on johtanut siihen, että parkkitalojen uudelleenrakennus rahoitetaan myymällä rakennusoikeutta niiden päälle. Parkkitalojen uusimisen hinta, noin 30 miljoonaa euroa, rahoitetaan myymällä rakennusoikeutta reilut 50 miljoonaa euroa. Rahan liikkeistä on toki täsmällisemmät ja paremmin erotellut laskelmat, mutta en avaa niitä tässä. Päähavainto on, että rakennusoikeuden myyminen on ainoa mahdollinen keino parkkitalojen uudelleenrakennuksen rahoittamiseksi.
Suunnittelu on edennyt Merihaka Oy:n vetämänä siihen suuntaan, että parkkitalojen päälle olisi tulossa uudet 15–16 kerrosta korkeat kerrostalot. Nämä olisivat samankorkuisia kuin nykyiset HPK 16, HPK 12 ja HKR 26. Minun näkemääni kokonaisuuteen on ympätty HOAS:in suunnitelmat oman talon purkamisesta ja kolmen uuden 8-kerroksisen talon rakentamisesta samalle paikalle.

Näiden uusien talojen suunnittelussa on luonnollisesti ollut esteenä se, että ne peittäisivät monen nykyisen asunnon näköaloja. Tämä on ollut vaikeaa joillekin taloyhtiöille ja johtanut kiperiin keskusteluihin.


Näiden uusien talojen myötä kasvaa toisaalta samalla parkkinormin edellyttämä pysäköintipaikkojen määrä. Näkemissäni suunnitteluehdotuksissa isoon osaan nykyistä pihakannen alaista pysäköintikenttää rakennettaisiin toinen kerros pysäköintiä. Lisäksi hiekkakentälle rakennettaisiin yksi kerros pysäköintiä, jolloin nykyisin maanvarainen alue nousisi pihakannelle. Tämä on myös ollut vaikea asia taloyhtiöille HRK16 ja HKR18, jotka ovat huolestuneita omasta pihanäkymästään.


Tarinan opetus
Merihakaan rakennettiin aikanaan parkkinormin velvoittamana kaksi parkkitaloa. Parkkitaloja ei kuitenkaan pystytty rahoittamaan pysäköintipaikkojen arvolla tai niistä saatavilla tuotoilla, jolloin parkkitalojen rakentamiskustannukset jyvittyivät asuntojen alkuperäiseen kauppahintaan. Parkkipaikkojen rakentamisen hinta oli suurempi kuin parkkipaikkojen arvo.
Tästä on tullut aikapommi parkkitalojen tullessa elinkaarensa päähän. Parkkitaloja ei voi uusia niiden pysäköintitulolla eikä parkkitalojen omistajat halua maksaa niiden uusimisesta. Ainoa tapa purkaa aikapommi eli rahoittaa parkkitalojen uusiminen on jyvittää parkkipaikkojen rakentamiskustannukset taas uusien asuntojen myymiseen.
Minusta on toki hyvä asia, että Merihakaan rakennetaan lisää asuntoja. On kuitenkin mieletöntä, että asuntojen rakentamisen yhteydessä pitää heittää kymmeniä miljoonia euroja hukkaan rakentamalla pysäköintipaikkoja, joiden arvo on pienempi kuin niiden rakentamisen hinta.
Parkkinormi pitäisi purkaa pikimmiten ja antaa parkkipaikkojen määrän määrittyä markkinaehtoisesti. Hukkaamme Helsingissä vuosittain kymmeniä miljoonia euroja siihen, että rakennamme alihinnoiteltuja pysäköintipaikkoja autoliikenteelle, jota pitäisi kaupungin omien tavoitteiden mukaan vähentää merkittävästi.
Jos nyt kuitenkin parkkinormin purkaminen on mahdotonta, uusien parkkitalojen kohdalla pitäisi vähintään varautua siihen, että elinkaarensa päässä ne voisi korvata ihmisiä varten rakennetuilla taloilla. Haluaisin luottaa siihen, että edes tulevaisuudessa tulemme sen verran järkiimme, ettemme enää edellytä nykyisten normien vaatimia pysäköintipaikkojen määrää. Jos emme tätä tee, jatkamme uusien aikapommien rakentamista.
Merihaallekin olisi ollut todella hyvä, jos nykyisten parkkitalojen tilalle ei tarvitsisi rakentaa uusia parkkitaloja. Parkkinormin hinta merihakalaisille taloyhtiöille on edelleen 30 miljoonaa euroa, vaikka rahottajaksi saatiin tulevat asukkaat.
Hollolassa 11 auton parkkikatoksen rakentaminen säkötolppineen maksoi 2006 noin 25.000€. Parkkipaikalta peritty 8€/kk, maksu sisältänyt lämpötolpan. Sähkötolpat vaihdettu sähköautotolpiksi, maksu edelleen sama.